Дом деревня Дроздово - В продаже

Минская область, Минский район, деревня Дроздово, 1-й Рождественский переулок, 7
Тип объявления Продажа
Категория объекта дом
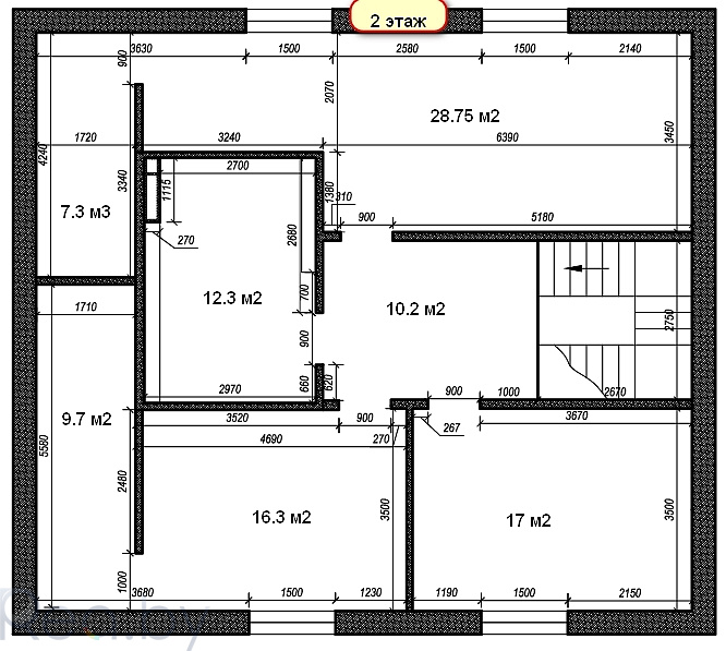
Общая площадь 199 м2
Этажность 2
Площадь участка 15 сот.
Санузел раздельный
Статус В продаже
Материал стен газоблоки
Удобства Электричество, Водопровод, Газ, Канализация, Отопление, Туалет
Торги 27.10.2025 12:00:00
  / 377 364 руб.

Продается коттедж в живописном поселке Дроздово, расположенном в черте города Минска и входящем в состав Боровлянского сельского совета. Это очаровательное место, окруженное хвойно-лиственными лесами и современного коттеджного строительства, создавая идеальную атмосферу для комфортной жизни. Коттедж находится всего в 3 км от МКАД, в непосредственной близости от района Зеленый Луг и реки Цна. Неподалеку — красивый хвойный лес, а удобные транспортные маршруты, включая пригородные автобусы и маршрутные такси, обеспечивают легкий доступ к Минску. Участок ровный правильной формы площадью 15 соток идеально подходит для реализации ваших идей. Дом, построенный в 2020 году, имеет общую площадь 199 кв. м, включая два санузла. Стены выполнены из газосиликатного блока (400 мм) и утеплены, а перекрытия обеспечены надежной железобетонной плитой. Крыша-металлочерепица, а окна — качественные ПВХ 2 камерные. Внутреннее пространство практически готово, проведены сантехническими коммуникации и выполнена черновая отделка, осталось небольшие работы по электричеству и установка колец для местной канализации. Иметься индивидуальная скважина 55 метров. С окон дома открывается живописный вид на зеленую зону, создавая атмосферу уюта и спокойствия. Респектабельные соседи и удобный асфальтированный выезд на трассу делают это место особенно привлекательным. Не упустите шанс стать владельцем этого прекрасного дома! Забудьте о сомнениях, это место действительно стоит вашего внимания!

Ваш персональный менеджер

Если у вас появились вопросы, напишите нам!